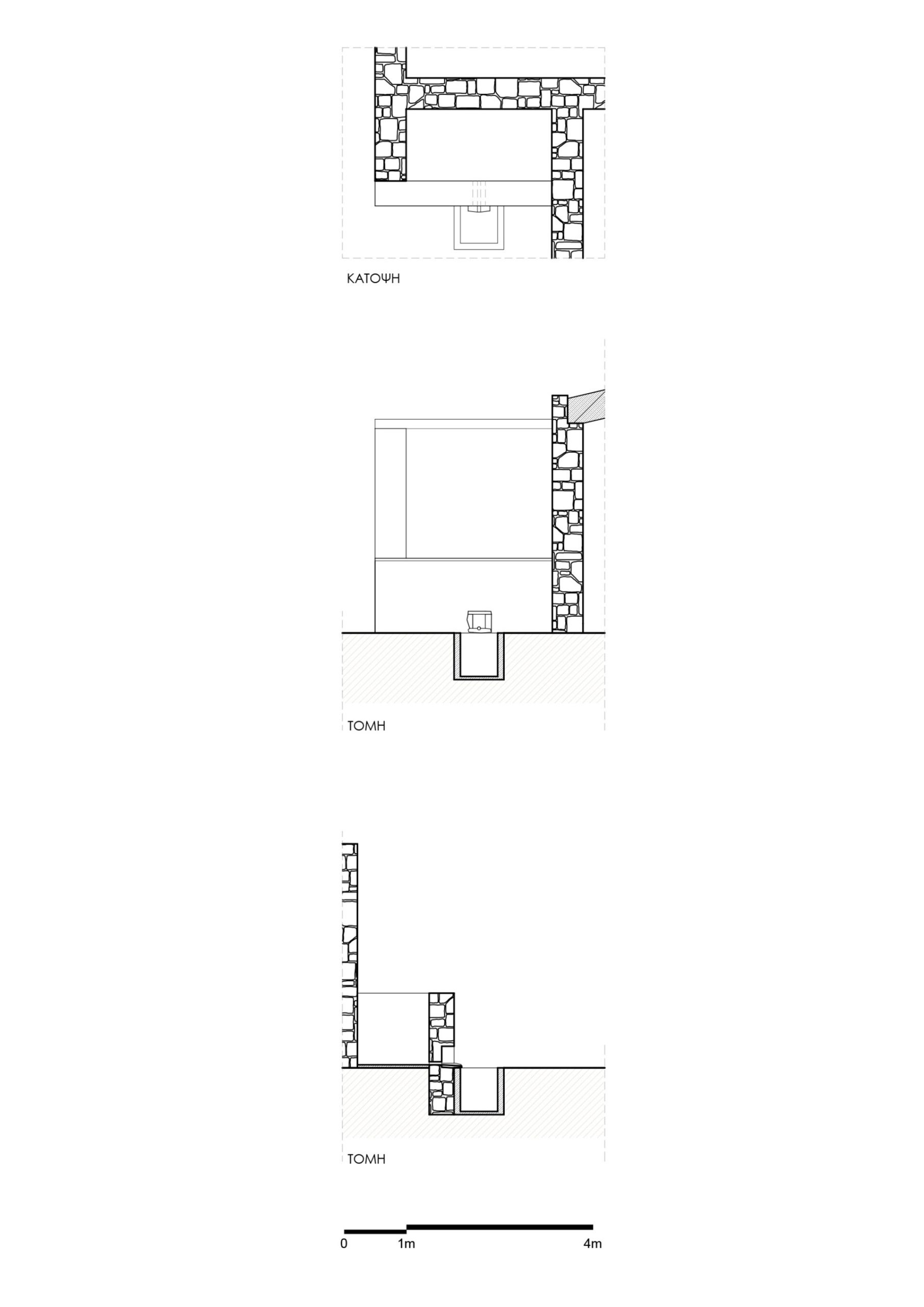
Client Π.Σ. Ίνατος Services Πατητήρια Date 08 Αύγ, 2025 ΠΑΤΗΤΗΡΙ ΣΤΟ ΙΝΙ 1919 ΠΑΤΗΤΗΡΙ ΣΤΟ ΙΝΙ 1919 ΠΑΤΗΤΗΡΙ ΣΤΟ ΙΝΙ 1919 ΠΑΤΗΤΗΡΙ ΣΤΟ ΙΝΙ 1919 ΠΑΤΗΤΗΡΙ ΣΤΟ ΙΝΙ 1919 ΠΑΤΗΤΗΡΙ ΣΤΟ ΙΝΙ 1919 ΠΑΤΗΤΗΡΙ ΣΤΟ ΙΝΙ - ΧΑΡΤΗΣ 1919 ΠΑΤΗΤΗΡΙ ΣΤΟ ΙΝΙ - ΧΑΡΤΗΣ 1919 ΠΑΤΗΤΗΡΙ ΣΤΟ ΙΝΙ - ΤΟΠΟΓΡΑΦΙΚΟ 1811 ΠΑΤΗΤΗΡΙ ΣΤΟ ΙΝΙ - ΣΧΕΔΙΑ